Mehrfamilienhaus Potsdam
Wassergrundstück Potsdam
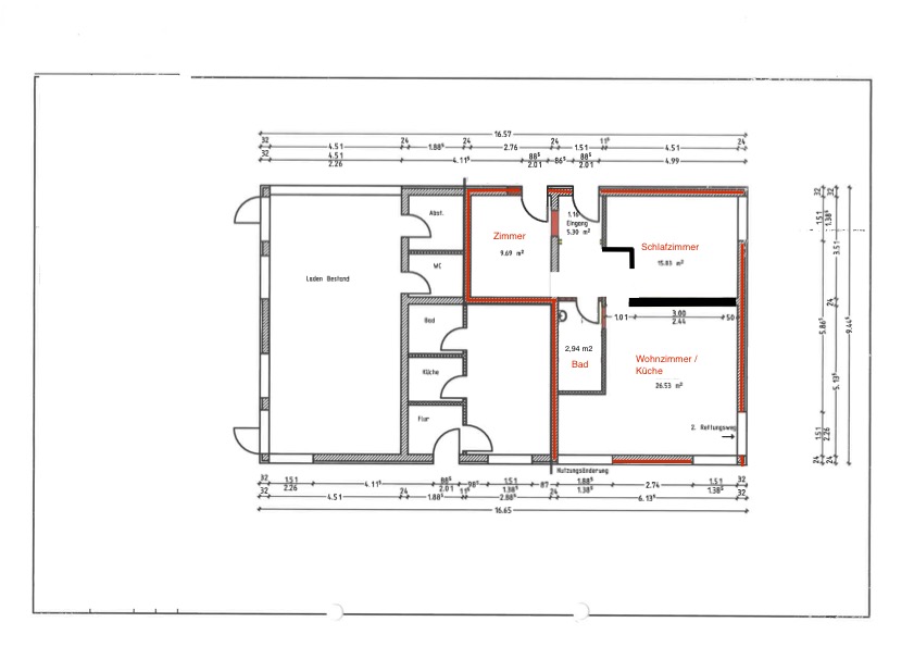
Die angebotene Einheit befindet sich im Erdgeschoss unweit des Hafens von Vitte, auf der autofreien Insel Hiddensee. Momentan liegt die Gewerbeeinheit in einem entkernten Zustand vor; der Erwerber erhält somit die Möglichkeit, die Räume gemäß eigener Vorstellungen und auf eigene Kosten ( Fussböden, Wände, Sanitär ) neu zu gestalten.
Der Preis inkludiert eine hochwertige Einbauküche im Wert von ca. 12.000 €, die derzeit im Küchenstudio gelagert wird und vom Käufer nach Bedarf eingebaut werden kann.
Wichtige Informationen zur Einheit:
Es handelt sich derzeit um eine Gewerbeeinheit.
Eine Umnutzung in Wohnraum ist aus unserer Sicht durchaus möglich. Abschließend kann jedoch erst darüber befunden werden, wenn ein Umnutzungsantrag gestellt wurde.
Weiteres im Exposè .......
Die Küche ist inklusive und bietet eine klare Wertkomponente von rund 12.000 €. Alle weiteren Ausstattungsbestandteile, insbesondere Fußböden, Sanitäranlagen und Malerarbeiten, liegen im Bereich des Erwerbers, der diese nach eigenem Bedarf und auf eigene Kosten implementieren kann.
Die Grundidee einer barrierefreien Struktur kann bei Bedarf fortgeführt werden. Hier sollten jedoch noch im individuellen Ausbau notwendige Anpassungen wie breitere Türen oder barrierearme Sanitärlösungen vorgenommen werden.
Wichtig:
Aufgrund eines Wasserschadens im Aussenmauerwerk finden derzeit Arbeiten an der Fassade statt, wobei die Kosten hier die Gemeinschaft trägt.
Weiteres im Exposè .......
Hiddensee präsentiert sich als einzigartige Insel mit unverwechselbarem maritimem Flair, geprägt durch naturbelassene Küsten- und Dünenlandschaften. Die Lage der Immobilie in unmittelbarer Nähe zum Hafen von Vitte ermöglicht kurze Wege zu Einkaufsmöglichkeiten, Bäckereien, Cafés, Restaurants und medizinischer Versorgung.
Weiteres im Exposè .......
Die ungefähre Position der Immobilie auf Google Maps ansehen (Link auf externe Website)
