Mehrfamilienhaus Potsdam
Wassergrundstück Potsdam
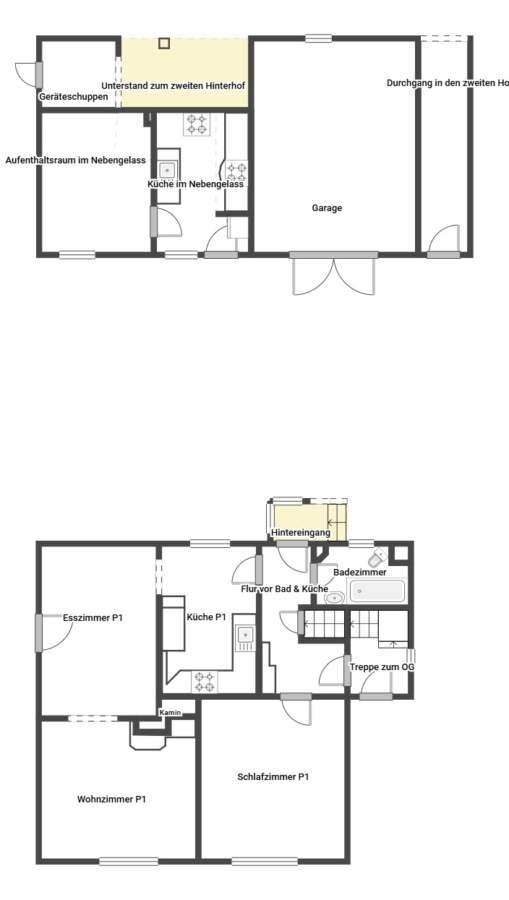
In waldnaher Lage von Borkheide erwartet Sie dieses freistehende Einfamilienhaus auf einem großzügigen Grundstück von ca. 1.250 m². Das massiv gebaute Haus bietet rund 130 m² Wohnfläche, 6 Zimmer und 2 Bäder – ideal für Familien, Paare mit Platzbedarf oder Wohnen und Arbeiten unter einem Dach.
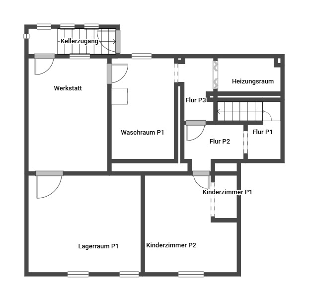
Ein echtes Plus sind die zahlreichen Nebenflächen: voll nutzbarer Keller, Doppelgarage, mehrere Unterstände sowie Gartenschuppen und weitere Abstellmöglichkeiten. Für gemütliche Stunden steht ein funktionstüchtiger Kamin im Haus zur Verfügung; zusätzlich gibt es im Nebengelass einen hochwertigen Kamin (aktuell noch ohne Abnahme). Eine kleine Photovoltaik-Installation (Mini-PV) ist ebenfalls vorhanden.
Die Umgebung verbindet Natur und gute Erreichbarkeit – Zugdurchfahrten sind in der Nachbarschaft akustisch wahrnehmbar.
Insgesamt bietet diese Immobilie eine attraktive Kombination aus Grundstücksgröße, solider Bausubstanz und Entwicklungspotenzial – ideal für Käufer, die ein Haus im Grünen suchen und es mit überschaubaren Renovierungen zu einem ganz persönlichen Zuhause gestalten möchten.
Das Anwesen umfasst neben dem Haupthaus eine ca. 31 m² große Doppelgarage (Baujahr ca. 1960). Die Abwasserentsorgung erfolgt über eine private Abwassersammelgrube. Auf dem Grundstück befinden sich zudem diverse Schuppen, die jedoch als baufällig eingestuft werden. Der Keller bietet eine Nutzfläche von ca. 96 m² und verfügt über einen Außenzugang.
Um Ihnen möglichst viel Raum auf den Bildern darstellen zu können, haben wir alle Fotos im Weitwinkelformat aufgenommen.
Für einen genauen und umfangreichen Einblick empfehlen wir den 360°Rundgang zu nutzen.
Verbrauchs- und Kostenhinweis
Ergänzend zum Energieausweis geben wir einen Überblick über die tatsächlich angefallenen Gasverbräuche und Energiekosten, um Interessenten eine möglichst realistische Einschätzung der laufenden Nebenkosten zu ermöglichen.
Kurzfazit
Die durchschnittlichen Gaskosten betrugen in den letzten erfassten Zeiträumen rund 2.823 € brutto jährlich bzw. etwa 235 € brutto monatlich. Weitere Details hierzu finden Sie übersichtlich aufbereitet im Exposé.
Aktuell betragen die monatlichen Gaskosten für einen 3 Personenhaushalt 215,-€ brutto.
Die Angaben in diesem Exposé haben wir vom Verkäufer erhalten und erfordern eine Detailprüfung durch den Käufer. Eine Haftung wird von uns nicht übernommen.
Eine waldnahe Lage mit hohem Freizeitwert, kombiniert mit sehr guter Pendleranbindung über den Bahnhof (RE7) und einer soliden Infrastruktur im Ort (Nahversorgung, ärztliche Anlaufstellen). Die Umgebung bietet zudem attraktive Ausflugsziele – insbesondere Beelitz-Heilstätten – und punktet insgesamt mit dem typischen, angenehmen Charakter einer Brandenburger Waldgemeinde.
Kindergarten 1,21 km | Grundschule 660 m | Gymnasium 7,73 km | Flughafen 68 km | Fernbahnhof 110 m | Autobahn 3,42 km | Bus 130 m | Gaststätten 220 m
Die ungefähre Position der Immobilie auf Google Maps ansehen (Link auf externe Website)