Mehrfamilienhaus Potsdam
Wassergrundstück Potsdam
Dieses freistehende Einfamilienhaus in bevorzugter Lage von Potsdam-Babelsberg vereint Großzügigkeit, Ruhe und eine besondere Wohnatmosphäre auf sehr angenehme Weise. Schon beim Betreten spürt man den Charakter dieses Hauses: helle Räume, ein durchdachter Grundriss und der schöne Bezug ins Grüne schaffen ein Wohngefühl, das zugleich offen, warm und geborgen wirkt.
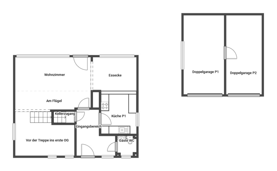
Auf ca. 162 m² Wohnfläche verteilen sich fünf Zimmer über zwei Ebenen; hinzu kommen ein Vollkeller, eine Loggia sowie eine überdachte Terrasse. Das ca. 835 m² große, eingewachsene Grundstück bietet viel Raum für Gartenleben, Rückzug und erholsame Stunden im Freien.
Eine besondere Qualität erhält die Immobilie auch durch ihre architektonische Herkunft: Nach Angaben der Eigentümerfamilie wurde das Haus von Horst Kiklas konzipiert, einem langjährigen prägenden Architekten der Stadt Potsdam und persönlichen Freund der Familie. Dies verleiht dem Haus eine zusätzliche Tiefe und unterstreicht den Eindruck, dass hier nicht nur ein Wohnhaus entstanden ist, sondern ein mit Blick für Proportion, Wohnlichkeit und Beständigkeit geplanter Lebensort.
Das Haus wurde in massiver Bauweise errichtet und verfügt über eine solide, gepflegte Substanz. Im Innenbereich sorgen unter anderem Echtholzparkett, Fliesen, Teppichboden, gespachtelte Wandflächen sowie eine ansprechende Holztreppe für ein klassisches und wohnliches Ambiente. Die Einbauküche ist bereits vorhanden und mit Geschirrspüler sowie Gasherd ausgestattet. Ein Gäste-WC ergänzt das Raumangebot sinnvoll. Weitere Ausstattungsmerkmale sind unter anderem Einbauschränke, Holzfenster mit Isolierverglasung, elektrische und manuelle Jalousien, Kabelanschluss, Gartenbeleuchtung sowie gepflasterte Wege. Zusätzlich stehen eine massiv errichtete Garage mit Anbau und praktische Kellerflächen, darunter auch ein als Arbeitszimmer nutzbarer Raum, zur Verfügung. Beheizt wird die Immobilie über eine Gasbrennwerttherme.
Diese Immobilie ist mehr als ein Haus in guter Lage – sie ist ein Ort mit Geschichte, Persönlichkeit und besonderer Ausstrahlung. Nach Angaben der Eigentümerfamilie wurde das Haus von dem Potsdamer Architekten Horst Kiklas konzipiert, während der Garten von Peter Herling gestaltet wurde, der dem Umfeld der Potsdamer Gartenkunst eng verbunden war.
Auch kulturell ist das Anwesen besonders geprägt: Nach Angaben der Eigentümerfamilie war das Haus über viele Jahre hinweg ein Ort des Austauschs und der Begegnung mit Bezug zur Potsdamer Kunst- und Kulturszene. Dadurch entsteht eine Atmosphäre, die über das rein Materielle hinausgeht und dieser Immobilie eine spürbare Identität verleiht.
Für Käufer, die nicht nur ein Zuhause, sondern einen Ort mit Seele, Geschichte und besonderem Charakter suchen, bietet sich hier eine seltene Gelegenheit.
Alle Angaben sind ohne Gewähr und basieren ausschließlich auf Informationen, die uns von unserem Auftraggeber übermittelt wurden. Wir übernehmen keine Gewähr für die Vollständigkeit, Richtigkeit und Aktualität dieser Angaben. Irrtum und Zwischenverkauf vorbehalten. Auf Wunsch stehen wir Ihnen mit weiteren Informationen zum Objekt und zum Eigentümer gerne zur Verfügung.
Die Immobilie befindet sich in gefragter Wohnlage von Potsdam-Babelsberg Nord. Das Umfeld ist geprägt von gewachsener Nachbarschaft, viel Grün und einer angenehmen Ruhe. Besonders attraktiv sind die Nähe zum Griebnitzsee, zum Park Babelsberg sowie die gute Erreichbarkeit von Einkaufsmöglichkeiten, Schulen, Ärzten und dem öffentlichen Nahverkehr. So verbindet die Lage auf sehr schöne Weise naturnahes Wohnen mit einer alltagstauglichen Infrastruktur und einer guten Anbindung an Potsdam und Berlin.
Kindergarten 450 m | Grundschule 400 m | Gymnasium 1,22 km | Fernbahnhof 1,12 km | Autobahn 3,52 km | Bus 480 m | Einkaufsmöglichkeiten 1,42 km | Gaststätten 710 m
Die ungefähre Position der Immobilie auf Google Maps ansehen (Link auf externe Website)